
O Concello de Sada reformará o inmoble para habilitar na planta baixa un aula infantil-ludoteca e un ximnasio e na planta alta unha sala destinada a aula musical e tamén espazos destinados ás asociacións e clubs deportivos do municipio, para organizar reuniones e atender aos seus asociados. O alcalde de Sada, Benito Portela, asinou o convenio coa Deputación Provincial no que o Concello de Sada aportará 46.000 euros nun investimento total de 186.000 euros.
O alcalde de Sada, Benito Portela, ven de firmar o convenio polo que a Deputación da Coruña otorgou unha subvención para a mellora do edificio da antiga Escola Infantil de Carnoedo segundo o proxecto de reforma interior de edificación para destinalo a uso social. O Concello de Sada aportará 46.000 euros nun investimento total de 186.000 euros.
A concellería de Participación Cidadá, xestionada por Rebeca Mouriño, convocou unha primeira mesa de participación á que se convidou a todo o tecido asociativo e a todos os grupos políticos da corporación. Nesta primeira mesa recolléronse todas as propostas e necesidades para a antiga escola unitaria de Carnoedo, para posteriormente, traballar nun borrador de propostas de uso.
"O resultado final é froito do traballo de todas e todos, indica Mouriño. Temos a sorte de contar cun gran tecido asociativo que impulsa ao concello a traballar para habilitar espazos municipais que promovan a diversidade e a integración". Entre isas asociacións a AA.VV. Armental, “bautizou” as distintas estancias cos topónimos das praias de Carnoedo, conectando este espazo multiusos coas raíces da parroquia.
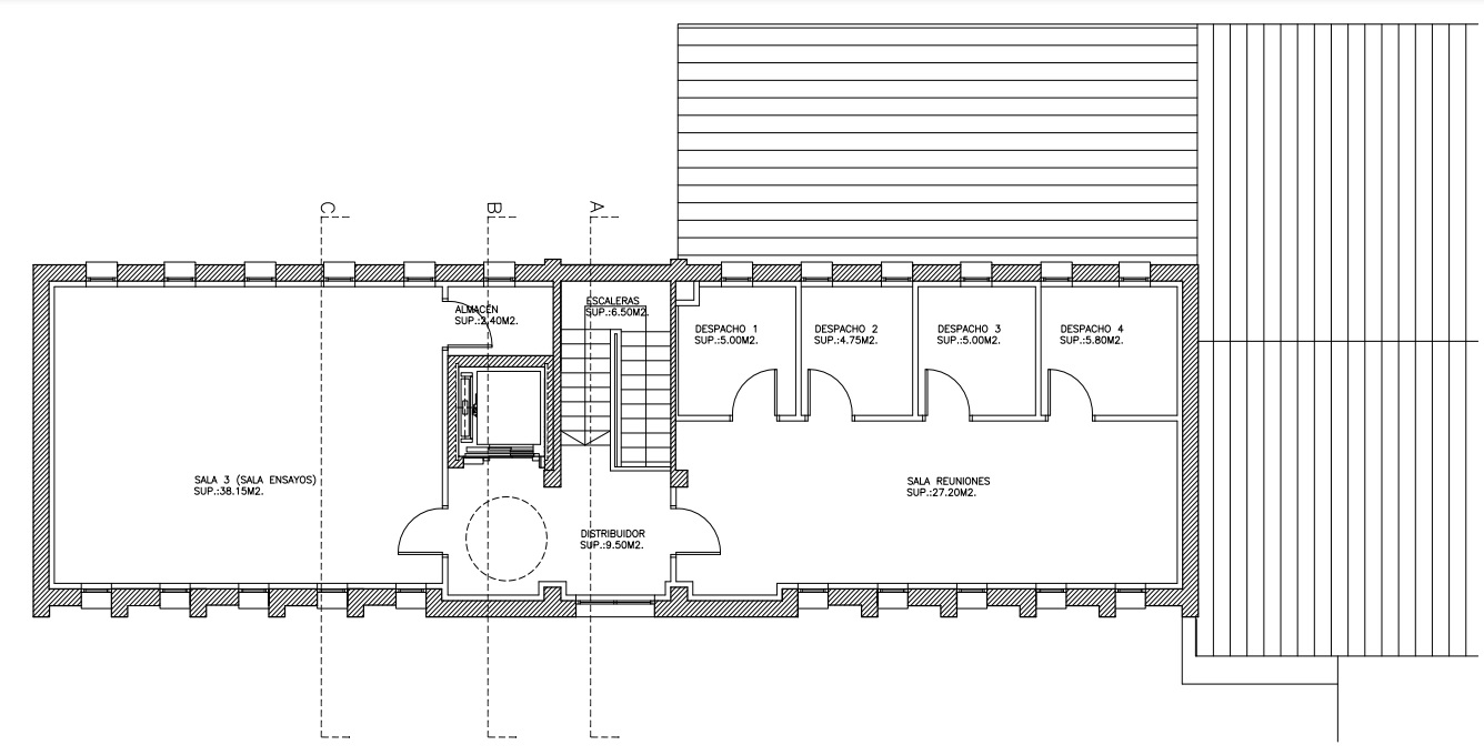
A parcela onde se sitúa a edificación, atópase no lugar de Taibo, parroquia de Carnoedo. A parcela conta cunha superficie de 2.155 m2, e a edificación obxecto da reforma ocupa unha superficie en planta de 136,85 m2, e conta con planta baixa e planta alta.
Non se modificará a estrutura xeral do edificio, nin o seu volume, só se adaptará a configuración existente, para mellorar as condicións de accesibilidade e confort da construción. Colocarase un elevador e modificaranse os aseos existentes para facelos accesibles.
Na planta baixa crearanse dúas salas na mesma posición que as aulas existentes, unha destinada a aula infantil-ludoteca e unha sala destinada a ximnasio. Na planta alta habilitarase unha sala destinada a aula musical contigua ao elevador e disporanse varios espazos destinados ás asociacións e clubs deportivos do municipio, para organizar reunións e atender aos seus asociados.
Partindo do programa que saíu das reunións de participación e tendo en conta os condicionantes existentes, desenvolveuse unha proposta na adaptarase a distribución das plantas, para dotar ao edificio dun elevador e duns aseos accesibles, procurando o mellor aproveitamento do espazo e unha mellora da accesibilidade. Tamén se renovarán os acabados interiores, colocando un trasdosado autoportante con illamento térmico e acústico, e falsos teitos, que mellorarán o confort do edificio. En canto á envolvente do edificio, actuarase eliminando a soleira existente, e creando unha nova soleira ventilada, co obxecto tanto de paliar o problema das humidades por capilaridad, como de illar térmicamente a separación co terreo.


Resumo de obras de reforma a realizar:
- Mellora da accesibilidade mediante a instalación dun elevador que permita o acceso do público á planta alta.
- Mellorarase tamén a accesibilidade na planta baixa, reformando o hall de entrada, modificando a entrada e ampliando os corredores de acceso ás diferentes estancias. Ademais modificaranse os aseos para facelos accesibles.
- Tamén se aumentará o confort térmico e acústico da edificación, renovando os acabados interiores, cun trasdosado autoportante con illamento nas paredes e falsos teitos con illamento, así como novos pavimentos.
- A sala destinada a aula de música se insonorizará, na medida do posible, xa que non se substitúe a carpintaría exterior existente.
- Realizaranse traballos de mantemento da fachada, saneando e reparando as fisuras, sobre todo da fachada lateral, e aplicarase unha pintura hidrófuga, colocando previamente unha malla para evitar fisuras.
Plan de Protección de Carnoedo
O Plan Xeral de Ordenación Municipal do Concello de Sada (PXOM), aprobado definitivamente por Orde do 11 de outubro de 2017 da Consellería de Medio Ambiente e Ordenación do Territorio, prevé a redacción do Plan Especial de Protección, Ordenación, Infraestruturas e Dotacións de Carnoedo.
No apartado de Estratexia de Actuación do Tomo VI do PXOM sinálase a conveniencia de formular e ter aprobado o Plan Especial de Protección, Ordenación, Infraestruturas e Dotacións de Carnoedo.
O pasado día 7 de outubro o Concello de Sada sacou a licitación o contrato é o servizo de asistencia técnica para a redacción do Plan Especial de Protección, Ordenación, Infraestruturas e Dotacións de Carnoedo previsto no PXOM para ordenar os terreos comprendidos polo ámbito dos núcleos complexos de Campo da Cruz-A Pedreira e Carnoedo, mesmo a porción de solo rústico lindante cos núcleos e o mar, dunha extensión superficial aproximada de 611.430 m².
O presuposto base de licitación fíxase por un importe de 90.000 euros, cun IVE que ascende a 18.900 euros, o que totaliza un presuposto base de licitación de 108.900 euros